Grapple Street Tbilisi

Tbilisi, Georgia


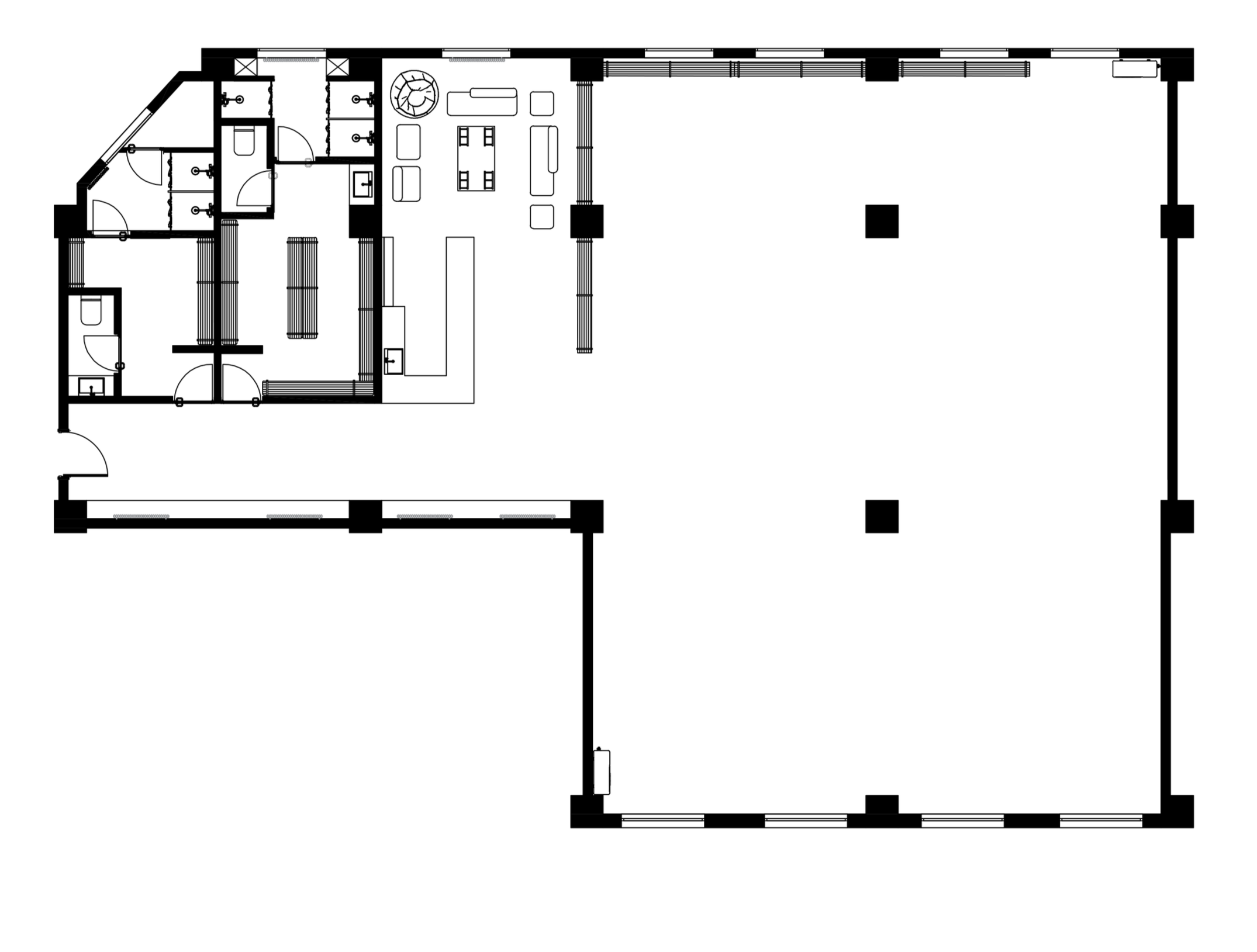
Floor Plan

Interior and spatial design for Grapple Street, a Brazilian Jiu-Jitsu academy in Tbilisi. The project encompassed the creation of a professional, inspiring, and welcoming environment suitable for practitioners of all levels, from beginners to advanced athletes. Design interventions focused on optimizing training areas, circulation, and functional zones while fostering a sense of community and discipline.

The scope included layout planning, interior design, material selection, branding integration, and support areas. The design promotes technique, focus, and resilience, while ensuring safety, comfort, and an immersive martial arts experience.